Установка пожарной сигнализации и т.п...

Местоположение
Город:
Котельники
Что нужно сделать
Вид систем:
- Системы пожарной и охранно-пожарной сигнализации
- Системы оповещения и эвакуации при пожаре
- Автоматические системы передачи извещений о пожаре
Информация об объекте
Назначение здания:
- Офис
- Торговля
Общая площадь здания:
100 м²
Количество этажей:
2
Цоколь:
Нет
Подвал:
Да
Мансарда:
Нет
Чердак:
Нет
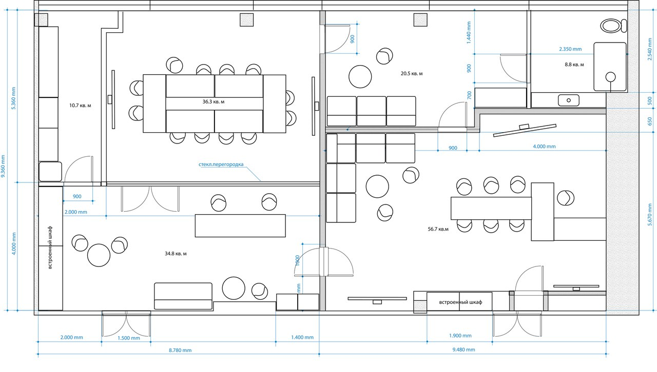
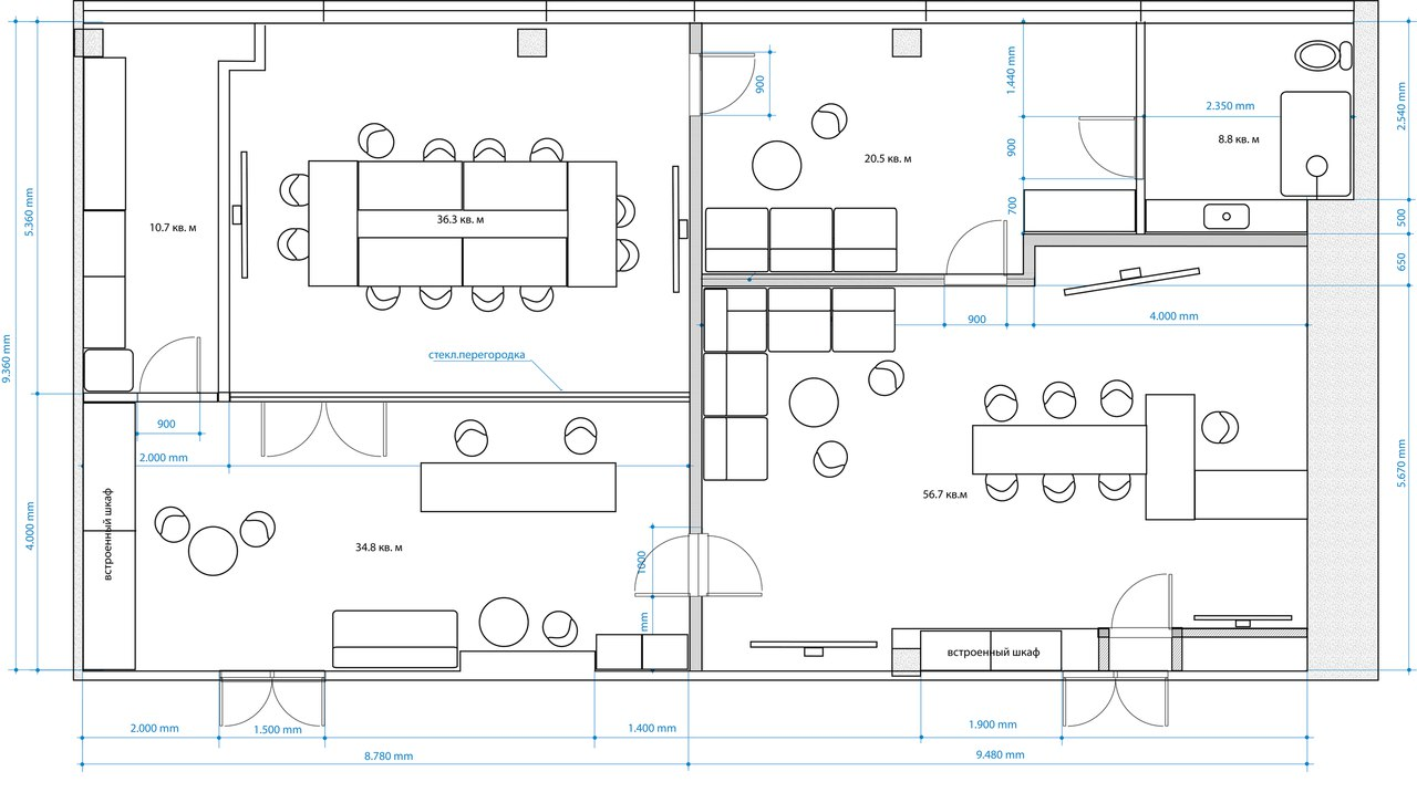
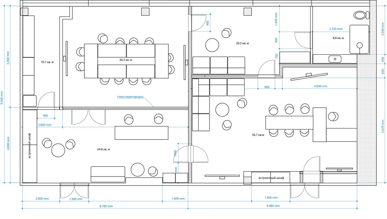
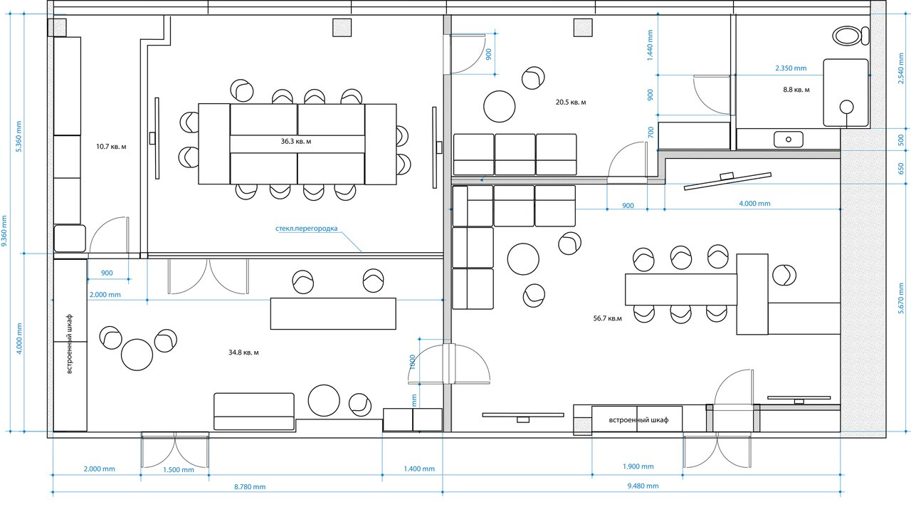
Схема помещений: